„Haus im Haus“ 5-ZKB Eigentumswohnung in attraktiver Lage am Homburg

66123 Saarbrücken / Am Homburg, Etagenwohnung zum Kauf

Kontaktdaten

Objektdaten

  • Objekt ID
    VK - AH1 - S
  • Objekttypen
    Etagenwohnung, Wohnung
  • Adresse
    Am Homburg 1
    66123 Saarbrücken / Am Homburg
  • Etagen im Haus
    3
  • Wohnfläche ca.
    102 m²
  • Nutzfläche ca.
    6 m²
  • Zimmer
    5
  • Schlafzimmer
    3
  • Badezimmer
    1
  • Separate WC
    1
  • Balkone
    1
  • Terrassen
    1
  • Heizungsart
    Zentralheizung
  • Wesentliche Energieträger
    Gas
  • Baujahr
    1929
  • Zustand
    modernisiert
  • Verfügbar ab
    Sofort
  • Stellplatz:
    1 Stellplatz
  • Käufer­provision
    3,57% inkl. MwSt.
  • Kaufpreis
    229.000 EUR

Ausstattung / Merkmale

  • Balkon
  • Haustiere erlaubt
  • Kabel-/Sat-TV
  • Separates WC
  • Teilunterkellert
  • Terrasse

Objekt­beschreibung

Beschreibung

Die hier angebotene Wohnung befindet sich in einem sehr gepflegten Anwesen Am Homburg, unmittelbar angebunden an den Meerwiesertalweg und damit in direkter Nähe zur Universität des Saarlandes und zur Saarbrücker Innenstadt.

Sie wohnen hier in bestem Umfeld, eingebettet in eine solide Eigentümergemeinschaft.

Ursprünglich ca. 1929 als Teil des Verwaltungsgebäudes einer bekannten Brauerei erbaut, wurde die Anlage 1983 in Wohneigentum geteilt und dabei umfassend modernisiert.

Entstanden sind dabei wenige Wohnungen, die durch den jeweils eigenen Eingang auf der Gebäuderückseite einen "Haus im Haus" Charakter aufweisen. Außerdem verfügt die angebotene 5-ZKB Wohnung über eine eigene moderne Gastherme, unterstützt durch mehrere Klima-Splitgeräte im EG, OG und DG.

Die Aufteilung ist sehr praktisch und bietet Raum für eine kleine Familie oder auch zur Kombination von Wohnen und Arbeiten.

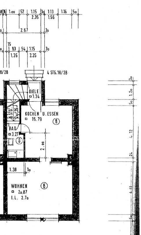
Nach dem Eingang befindet sich im EG die große Wohnküche mit einer modernen Einbauküche, die bereits im Kaufpreis enthalten ist. Anschließend daran ein großer Wohnraum. Neben der Küche befindet sich ein kleiner Hauswirtschaftsraum mit WC und der Zugang zum Keller. Über ein innenliegendes Treppenhaus gelangt man in das OG mit drei Schlafzimmern und einem (innenliegenden) modern gefliestem Bad.

Eines der Schlafzimmer dient quasi als Durchgangszimmer zum Balkon. Über diesen gelangt man über eine Treppe, also einen außenliegenden Zugang, in das nachträglich als Hobbyraum bzw. Home-Office ausgebaute Dachgeschoss, wo sich auch die moderne Gastherme befindet und ein weiteres WC. Auch dieser Raum ist zusätzlich klimatisiert.

Ein (Außen-) Stellplatz und ein separater Abstellraum im Außenbereich runden dieses Angebot ab.

Gerne stellen wir Ihnen diese wunderbare Wohnung bei einer gemeinsamen Besichtigung vor.

Bitte kontaktieren Sie uns dazu unter Angabe Ihrer vollständigen Kontaktdaten inkl. Telefonnummer.

Wir freuen uns auf Ihre Nachricht

Ausstattung

Sehr gepflegte Wohnanlage nach WEG geteilt
Haus im Haus Charakter mit eigenem Eingang
Stellplatz auf dem Grundstück der Gemeinschaft
Balkon im 1. OG und Terrasse neben dem Eingang
Separater außenliegender Abstellraum
Eigene moderne Gastherme
Eigene Abrechnung für Gas, Wasser und Strom
Klimasplitgeräte im EG, OG und DG
Kleiner Kellerbereich
Pflegeleichte Böden und ISO-Kunststofffenster
Tolle Lage im sehr beliebten Wohngebiet Am Homburg
Wohnfläche ca. 82m² im EG und im OG
Weitere ca. 20m² im ursprünglichen Wasch- und Trockenraum,
der als Hobbyraum bzw. Home-Office ausgebaut wurde.

Sonstige Informationen

Selbstverständlich stehen wir Ihnen gerne mit weiteren Objektinformationen und für Besichtigungen zur Verfügung.

Alle im Exposé genannten Objektangaben und Informationen beruhen auf Angaben des Auftraggebers. Für die Richtigkeit und Vollständigkeit wird keine Haftung übernommen.

Hinweis zum Energieausweis:
Wir weisen alle Auftraggeber auf die aktuellen gesetzlichen Regelungen zur Vorlage eines Energieausweises hin. Im Einzelfalle ist der Ausweis zum Zeitpunkt der Erstellung des Exposé in Bearbeitung, also noch nicht erstellt und wird später nachgereicht. Wir bitten dies zu entschuldigen.
Ergänzender Hinweis: Ein übergebener Energieausweis stellt keine Beschaffenheitsvereinbarung dar. Unser Haftungsauschluss bezieht sich auch auf die darin enthaltenen Daten.

Die Pflichten nach dem Geldwäschegesetz (GwG)
• Der Gesetzgeber schreibt vor, dass Vertragspartner vor der Begründung einer Geschäftsbeziehung zu identifizieren sind. (§3 GwG). Immobilienmakler haben diese Sorgfaltspflicht einzuhalten. Die Identifizierung des Kaufinteressenten durch den Immobilienmakler muss erfolgt sein, bevor die Aufnahme der Kaufvertragsverhandlungen ermöglicht wird.
• Bei der Identifizierung sind entweder Name, Geburtsdatum und –Ort, Staatsangehörigkeit, Anschrift, Personalausweisnummer und ausstellende Behörde festzuhalten oder es ist der Ausweis zu kopieren.
• Darüber hinaus hat der Makler zu klären, ob der Kunde im eigenen wirtschaftlichen Interesse handelt oder für einen Dritten.
• Festgehalten werden muss auch, ob es sich bei dem Vertragspartner und ggf. wirtschaftlichen Berechtigten um eine Politisch exponierte Person (PeP) handelt.
• Als Kunde sind Sie verpflichtet, dem Immobilienmakler den Ausweis vorzulegen und die entsprechenden Auskünfte zu erteilen (§4 Abs. 6 GwG)
Bitte helfen Sie Ihrem Immobilienmakler dabei, die gesetzlichen Pflichten nach dem Geldwäschegesetz zu erfüllen.
• Zeigen Sie uns bitte Ihren Personalausweis und ermöglichen damit die vorgeschriebene Dokumentation.

Lage

Die angebotene Wohnung befindet sich am Homburg in Saarbrücken, eingebettet in ein sehr gepflegtes und gut situiertes Wohnumfeld mit bester Anbindung zur City oder auch zur Universität des Saarlandes.

Mit dem Stadtwald, dem Wildpark und dem Prinzenweiher sind beliebte Naherholungsziele hier fußläufig erreichbar.

Auch die Autobahnanbindungen zur A623 oder zur A6 sind hervorragend, zudem befindet sich eine Bushaltestelle unmittelbar vor der Wohnanlage, nur wenige Meter vom Hauseingang entfernt.

Am Homburg 1, 66123 Saarbrücken / Am Homburg, Deutschland (Größere Karte ansehen)

Direktanfrage

 SSL-verschlüsselt
Immobiliendaten-Import und Darstellung für WordPress: WP-ImmoMakler®