Energetisch optimierte Neubauwohnung, Penthouse, Panoramaausblick, provisionsfrei

66583 Spiesen-Elversberg / Elversberg, Penthousewohnung zum Kauf

Kontaktdaten

Objektdaten

  • Objekt ID
    VK - NBS PH - S
  • Objekttypen
    Penthousewohnung, Wohnung
  • Adresse
    66583 Spiesen-Elversberg / Elversberg
  • Etagen im Haus
    4
  • Wohnfläche ca.
    96 m²
  • Zimmer
    3
  • Schlafzimmer
    2
  • Badezimmer
    1
  • Balkone
    1
  • Heizungsart
    Zentralheizung
  • Wesentliche Energieträger
    Luft/Wasser Wärmepumpe
  • Baujahr
    2026
  • Zustand
    Erstbezug
  • Verfügbar ab
    2026 Fertigstellung
  • Stellplatz:
    12.000 EUR (Anzahl: 1)
  • Kaufpreis
    419.000 EUR

Ausstattung / Merkmale

  • Balkon
  • Haustiere erlaubt
  • Kein Keller

Objekt­beschreibung

Beschreibung

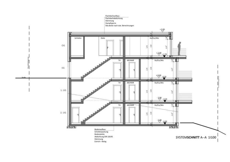
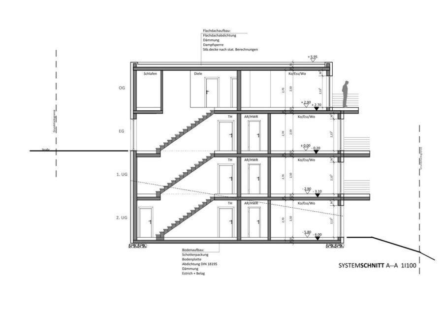
In Spitzenlage von Spiesen-Elversberg, befindet sich der energetisch nach neuestem Standard errichtete Neubau mit nur 4 Wohneinheiten. Das Gebäude wird im Jahr 2026 schlüsselfertig errichtet.

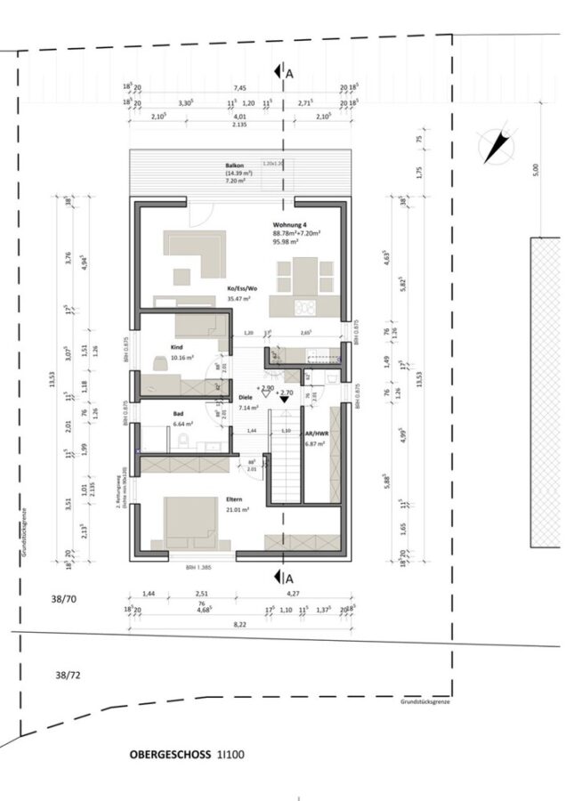
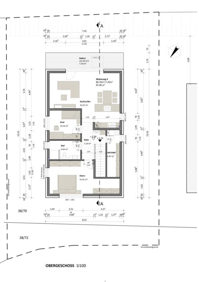
Diese nun noch verfügbare Penthouse Wohnung bietet den zukünftigen Bewohnern mit 3 Zimmern, Küche, Bad, Abstellraum und Balkon einen wunderschönen neuen Lebensmittelpunkt.

Der Neubau des erfahrenen Bauträgers bietet dabei auf 4 Etagen mit jeweils nur einer Wohnung pro Ebene Ruhe, Qualität und eine altersgerechte barrierearme Erschließung.

Vor dem Gebäude befinden sich optional erwerbbare (Außen-) Stellplätze (12.000 € Kaufpreis).

Die Luft-Wärmepumpe mit integrierter Warmwasseraufbereitung sorgt in Kombination mit der Dämmung des Gebäudes für planbar niedrige Energiekosten.

Die Ausstattung der Wohnung, die schlüsselfertig für Sie errichtet wird, lässt dabei keine Wünsche offen und vermittelt einen ebenso wertigen Eindruck wie die gesamte Immobilie.

Gerne informieren wir Sie in einem persönlichen Gespräch ausführlich und detailliert zu diesem Kaufobjekt und treffen uns mit Ihnen auch gerne unverbindlich zu einer Besichtigung vor Ort.

Wir freuen uns auf Ihre Anfragen, bitte übermitteln Sie uns dabei auch Ihre vollständigen Kontaktdaten.

Ausstattung

Neuwertige Wohnung in Effizienzhaus
Wohnung 4 im OG, Penthouse
Außenstellplatz optional verfügbar (12.000 €)
Tolle Lage im Neubaugebiet
Balkon mit Panorama-Weitblick

Ausstattungs-Highlights:

Luft-Wärmepumpe mit Warmwasseraufbereitung
3-fach verglaste ISO-Fenster
Fußbodenheizung
Elektrische Rollläden
Hochwertige Badausstattung
Böden Feinsteinfliesen, Parkett oder Vinyl
Granitfensterbänke
Terrassen- und Balkoneinfassungen aus Edelstahl und Glas
Videosprechanlage
Wände Malervlies weiss gestrichen
Gigabit-Netzwerkverkabelung

Sonstige Informationen

Selbstverständlich stehen wir Ihnen gerne mit weiteren Objektinformationen und für Besichtigungen zur Verfügung.

Alle im Exposé genannten Objektangaben und Informationen beruhen auf Angaben des Auftraggebers. Für die Richtigkeit und Vollständigkeit wird keine Haftung übernommen.

Hinweis zum Energieausweis:
Wir weisen alle Auftraggeber auf die aktuellen gesetzlichen Regelungen zur Vorlage eines Energieausweises hin. Im Einzelfalle ist der Ausweis zum Zeitpunkt der Erstellung des Exposé in Bearbeitung, also noch nicht erstellt und wird später nachgereicht. Wir bitten dies zu entschuldigen.
Ergänzender Hinweis: Ein übergebener Energieausweis stellt keine Beschaffenheitsvereinbarung dar. Unser Haftungsauschluss bezieht sich auch auf die darin enthaltenen Daten.

Die Pflichten nach dem Geldwäschegesetz (GwG)
• Der Gesetzgeber schreibt vor, dass Vertragspartner vor der Begründung einer Geschäftsbeziehung zu identifizieren sind. (§3 GwG). Immobilienmakler haben diese Sorgfaltspflicht einzuhalten. Die Identifizierung des Kaufinteressenten durch den Immobilienmakler muss erfolgt sein, bevor die Aufnahme der Kaufvertragsverhandlungen ermöglicht wird.
• Bei der Identifizierung sind entweder Name, Geburtsdatum und –Ort, Staatsangehörigkeit, Anschrift, Personalausweisnummer und ausstellende Behörde festzuhalten oder es ist der Ausweis zu kopieren.
• Darüber hinaus hat der Makler zu klären, ob der Kunde im eigenen wirtschaftlichen Interesse handelt oder für einen Dritten.
• Festgehalten werden muss auch, ob es sich bei dem Vertragspartner und ggf. wirtschaftlichen Berechtigten um eine Politisch exponierte Person (PeP) handelt.
• Als Kunde sind Sie verpflichtet, dem Immobilienmakler den Ausweis vorzulegen und die entsprechenden Auskünfte zu erteilen (§4 Abs. 6 GwG)
Bitte helfen Sie Ihrem Immobilienmakler dabei, die gesetzlichen Pflichten nach dem Geldwäschegesetz zu erfüllen.
• Zeigen Sie uns bitte Ihren Personalausweis und ermöglichen damit die vorgeschriebene Dokumentation.

Lage

Die Verbandsgemeinde Spiesen-Elversberg, bestehend aus den namensgebenden Ortsteilen, liegt verkehrsgünstig in der Nähe zur Biosphärenstadt St. Ingbert.

Auch die Anbindung an die saarländische Landeshauptstadt Saarbrücken und den Industriestandort Neunkirchen ist durch die Autobahnzubringer zur A8 und A6 hervorragend.

Der Ort selbst besitzt eine sehr gute Infrastruktur mit allen Einrichtungen des öffentlichen Lebens.

Durch die einerseits ländlich geprägte Lage und der andererseits positiven wirtschaftlichen Entwicklung des Ortes, bietet Spiesen-Elversberg einen attraktiven Platz zum Leben und Arbeiten.

Die dargestellte Position der Immobilie ist nur eine ungefähre Angabe.

Direktanfrage

 SSL-verschlüsselt
Immobiliendaten-Import und Darstellung für WordPress: WP-ImmoMakler®